Vedi tutte le 12 foto Vedi tutte le 12 foto Vedi tutte le 12 foto Vedi tutte le 12 foto Vedi tutte le 12 foto Vedi tutte le 12 foto Vedi tutte le 12 foto Vedi tutte le 12 foto Vedi tutte le 12 foto Vedi tutte le 12 foto Vedi tutte le 12 foto Vedi tutte le 12 foto

Quadrilocale

Nuvolera

Vendite

110000 €

IMMOBILE DA RISTRUTTURARE - V000602

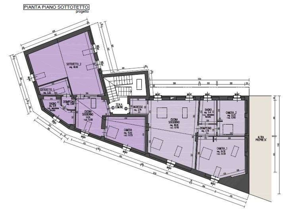
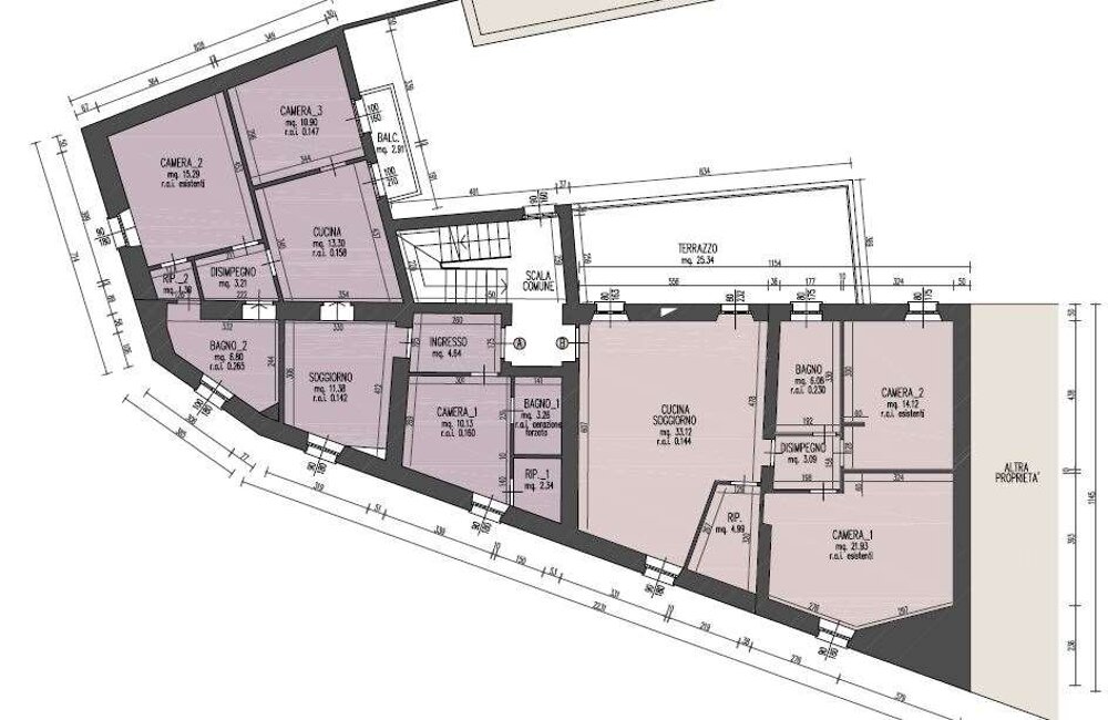
NUVOLERA - POSIZIONE CENTRALE Il fabbricato gode sicuramente di una posizione comoda a tutti i servizi che valorizzerebbero l'intero nucleo abitativo, vista per l'appunto la centralità di cui gode. Il recupero prevede i due piani abitativi, primo e sottotetto. Il vano scala interno prevederebbe la distribuzione di più unità abitative. Attualmente la proprietà ha presentato un progetto già approvato, pensato per un imprenditore, dove prevederebbe la realizzazione di 4 unità abitative, ma sicuramente è possibile variare quanto oggi pensato. Le quattro unità sono così disposte: PIANO PRIMO APPARTAMENTO A) Quadrilocale di 95Mq ingresso dove è stata ricavata una camera con ripostiglio e bagno padronale, si prosegue entrando nel soggiorno con cucina separata, ulteriore camera singola con affaccio interno e balcone rivolto verso la corte, disimpegno, ulteriore camera matrimoniale e bagno. APPARTAMENTO B) Trilocale di 95 Mq zona giorno volutamente pensata bella ampia con cucina open-space ed eventuale ripostiglio con terrazzo di 25mq, disimpegno, bagno, camera matrimoniale e seconda camera da 22 mq con la possibilità di realizzare una cabina armadio. SOTTOTETTO APPARTAMENTO C) Bilocale di 45 Mq così pensato zona living open-space con cucina integrata, disimpegno, bagno, stanza jolly e camera matrimoniale; l'appartamento gode di un accesso a un vano da 45mq APPARTAMENTO D) Soluzione abitativa simile all'appartamento sottostante (unità B) trattasi di un trilocale di 90mq con la stessa suddivisione degli spazi

Caratetristiche

Categoria
Contratto
Vendite
mq
390
Piano
1
Classe Energetica
VA
Bagni
0
Giardino
0 mq
Taverna
0 mq
Balconi
1 (6 mq)
Terrazzi
1 (25 mq)
Mansarda
0 mq
Cantina
0 mq
Solaio
0 mq
Box
0 (0 mq)
Posti auto
0
Accessori
Doppio Ingresso
Ingresso Indipendente
Parco Condominiale
Passaggio Automobilistico
Passaggio Pedonale
Prezzo
110000